Sicher vermögen aufbauen

BAUPROJEKT ALDINGEN-WINZINGEN

Wer sich für eine Immobilie entscheidet, wünscht sich meist mehr als nur Zahlen – er wünscht sich Sicherheit, Klarheit und Kompetenz.
Genau das bieten wir Ihnen bei BREINLINGERs: ein Rundum-Sorglos-Paket welches Planung, Beratung, Umsetzung und Betreuung aus einer Hand vereint.
So wird der Schritt in die Immobilieninvestition überraschend einfach – und vor allem lohnenswert.

Neubauimmobilien, wie bei unserem Bauprojekt in Aldingen, bieten nicht nur ein Zuhause, sondern auch eine wertvolle Möglichkeit,
mit der Sie sicher Vermögen aufbauen. Als Kapitalanlage sind sie eine stabile und renditestarke Lösung, die durch ihre nachhaltige Wertsteigerung überzeugt.

0,01% Zinsen
im KfW Programm 296
1600 €
Monatliche Mieteinnahmen
5 % AfA
Jährliche Abschreibung (degressiv)
< 15 %
EIGENKAPITALRENDITE
Kfw 55
STEUERVORTEIL & Förderung

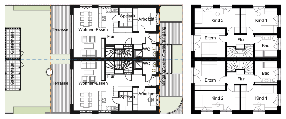
Haustyp A

DOPPELHAUSHÄLFTE


Dieses moderne Doppelhaus überzeugt mit durchdachter Architektur, hochwertiger Ausstattung und einem wohnlichen Charakter, der zum Verweilen einlädt. Es eignet sich sowohl für Eigennutzer, als auch für Kapitalanleger. Vergleichbare Objekte erzielen Mieteinnahmen von ca. 1.600 € im Monat, was die Rentabilität dieser Immobilie zusätzlich unterstreicht. 

Nachfolgend finden Sie den Grundriss des Doppelhauses, das analog zu unserem Musterhaus in Buchheim errichtet wird. Unser Musterhaus kann jederzeit besichtigt werden – überzeugen Sie sich selbst von der Qualität und dem besonderen Wohngefühl, das dieses Haus bietet.

Erdgeschoss & Obergeschoss

GRUNDRISS – 133 m2

Haustyp B

REIHENHAUS


Dieses Reihenhaus bietet durch seine effiziente Bauweise niedrige Energie- und Unterhaltskosten und vereint, wie auch das Doppelhaus zuvor, den clever geplanten Grundriss mit moderner Architektur und einer angenehmen Wohnatmosphäre. Ob als gemütliches Eigenheim für die Familie oder als wertbeständige Kapitalanlage – es bietet viel Raum für individuelle Lebenskonzepte. 

Grundriss siehe Doppelhaus zuvor. 

Erleben & Entdecken

MUSTERHAUS BUCHHEIM

Unser Musterhaus in Buchheim gibt Ihnen die Gelegenheit, sich einen persönlichen Eindruck von der Qualität und dem Potenzial einer Kapitalanlage zu verschaffen – direkt vor Ort, zum Greifen nah! Vereinbaren Sie jetzt Ihren individuellen Besichtigungstermin – gerne begleiten wir Sie persönlich durch das Musterhaus. Auf Wunsch erhalten Sie alternativ einen Zugangscode, mit dem Sie das Haus innerhalb der Öffnungszeiten auch ganz flexibel allein besichtigen können.

Öffnungszeiten
Mo – So von 08:00 – 20:00 Uhr 

Adresse
Am Molkegraben 13/1 in Buchheim

KÜCHE

WOHNEN

SCHLAFEN

Jetzt sicher vermögen aufbauen

BERATUNGSTERMIN VEREINBAREN




© Online Marketing & Webdesign von taismo